公園のような整形外科クリニック
スワイプして
次の記事を見る
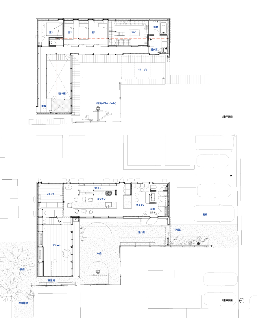
家族の時間と建築の時間をどう折り合わせるかをテーマにした住宅です。前橋駅近くの住宅街に建ち、夫婦と5人の子どもからなる7人家族の暮らしを包み込みます。北関東特有の「からっ風」を避けるように中庭を囲む曲面の外壁をもち、その内側に体育館のような大空間「アリーナ」を配置しました。季節ごとの光や風を受け止めながら、家族の変化をおおらかに受け入れる構成です。住宅を「住むためだけの機械」ではなく、家族と地域の時間をやわらかく包むエンベロープとして構想しています。





群馬県前橋市の駅周辺に建つ住宅。前橋駅と中心市街地は少し離れており、その間を駅前にしてはのんびりとした宅地が埋めている。グリッド街区に対して、住宅や事務所、たまに飲食店、と小ぶりな建築が並んでいる。旗竿敷地がせめぎあい、街区の中心部は接道できない宅地も生まれてきており、それらは路地状の共有地によってそのアクセスが確保されていたりする。そんな街区の中の、旗竿形状ながら86坪のやや広めな敷地に住宅を設計することになった。
住宅において、建築そのものの時間とそこに住む人々の時間をどう折り合わせるかという課題は避けて通れない。一方で建築は人間よりも長く存続しうる存在であり、決して安価な消費財ではない。標準的に規定された家族像や「住むため“だけ”の機械」としての住宅が、時間を経るごとに想定と現実の間にギャップを生み出していく。さらに相続による分割が進み、身の丈に合った住宅像が固定化し、住宅を住宅らしく作ることの閉塞感は住宅の短命化に拍車をかけている。




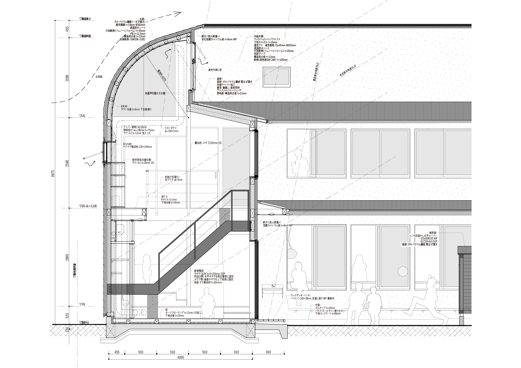
まずは、街区に潜む獣道のような共有地や路地の延長線上の「たまり」として中庭を位置づけた。この中庭を囲うように、北関東地域特有の冬季の季節風である「からっ風」から守る曲面をもつ壁を配置する。この壁の内側に身を寄せるように中庭と一体的になったアリーナや諸室が並んでいる。季節に応じた光の入射角をふまえた庇は、立面を分割し建具が過大になるのを避けている。中庭に対して徐々に庇がおりていってすり鉢状となることで、街区の奥の中庭でも大きな空を感じることができる。曲面壁の裏地としての内部仕上げはラワン合板の下見板張とし、書棚に並ぶ本や華奢な手すりとともに、無機質でシームレスな外観に対してスケールを落としている。
設計を進めていく中でも家族の形は変わっていく。当初は予期していなかった5人目の子供が生まれ、中学生の長男は反抗期を迎える。常に変化する住まい方に対して、それを受け入れる建築のおおらかな全体が都市の部分として定着してくれば、この住宅は読み替えられながらも生き続けていけるはずだ。







検討の過程では、大家族が共に過ごす空間の気積と、適度な距離感がとれることの2点に留意した。空地率の高い周辺状況に対し、初期段階では視覚的、環境的な繋がりを点在させることで7人がのびのびと過ごす空間イメージを探っていたが、まだ幼い子供たちを見守る視点の重要性や、彼らの有り余るエネルギーを目の当たりにし、最終案では中庭を核とするより大胆な空間構成にシフトしている。その後、わずか3畳半に抑えた個室の間仕切りをガラス引戸+カーテンとすることによる音と視線の調整、大空間の空調負荷を軽減する熱循環ダクトによる気候調整、パントリーや家具配置、運動器具をつかった複数経路の形成、床・天井レベルの変化による一室空間の体験的な分節など、内部の設えによって、住人同士の心地よい距離感が保たれるよう配慮した。(久保田啓斗)














ロフトを含む3層の居住部分に対し、天井の高い開放的な空間のアリーナがL字型に接続している。アリーナの屋根は、2階上部のセットバック部分に設けたスパン7.2mの木造平行弦トラスによって支持し、その上弦から壁面にかけて半ヴォールト屋根が架かる。この半ヴォールト屋根は、円弧状に曲げたCT鋼-100×100×5.5×7を1,820mmピッチで配置し、円弧面に沿って105角の母屋を並べ、9mm厚の構造用合板を沿わせることで、薄い曲面版として構成している。また、円弧状CT鋼と壁面柱との接合部はピン接合となるため、短辺方向の水平力に対しては、この柱が2階床からの片持ちとして抵抗する構造となっている。(坂田涼太郎)


お施主さんの合意もあり、プロセス写真を掲載しています。今回は地鎮祭や上棟式を丁寧に執り行うことができたほか、棟梁の人柄もあって現場の雰囲気もよかったです。お施主さんご家族と大工さんたちとの和やかなシーンもよい家づくりにとって欠かせないものだと感じられました。























引渡しから2ヶ月ほど経過した頃、内覧会を行い、半日で計37名の方々に来場いただきました。
散歩コースで日々工事の頃から見守っていただいたという近隣の方々や、群馬県内外の建築関係者の方々をあわせて3回に分けてご案内し、実際の生活の場にお邪魔することも考慮して、会の初めと終わりに参加者お1人お1人から自己紹介と感想をいただく時間を設けました。アリーナに車座になって様々なフィードバックを頂く時間は、アリーナという場が静かに輝く幸せな瞬間でした。




| 竣工 | 2025年9月 |
| 設計期間 | 2023年9月〜2024年11月 |
| 施工期間 | 2024年12月〜2025年9月 |
| 所在地 | 群馬県前橋市・商業地域・準防火地域 |
| 用途・規模 | 戸建住宅・木造2階建て |
| 敷地面積 | 186.56㎡ |
| 建築面積 | 103.21㎡ |
| 延床面積 | 171.43㎡ |
| 種別 | 新築工事 |
| クライアント | 個人 |
| 意匠設計 | HAGISO (久保田啓斗、宮崎 晃吉) |
| 構造設計 | 坂田涼太郎構造設計事務所(堀内拓磨、坂田涼太郎) |
| 設備アドバイス | ピロティ |
| 施工 | 安松託建 |
| 写真 | 楠瀬友将(竣工写真)、HAGISO(process) |
携わる人たち
関連情報